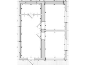
Норвегия 40 2 шт 6м