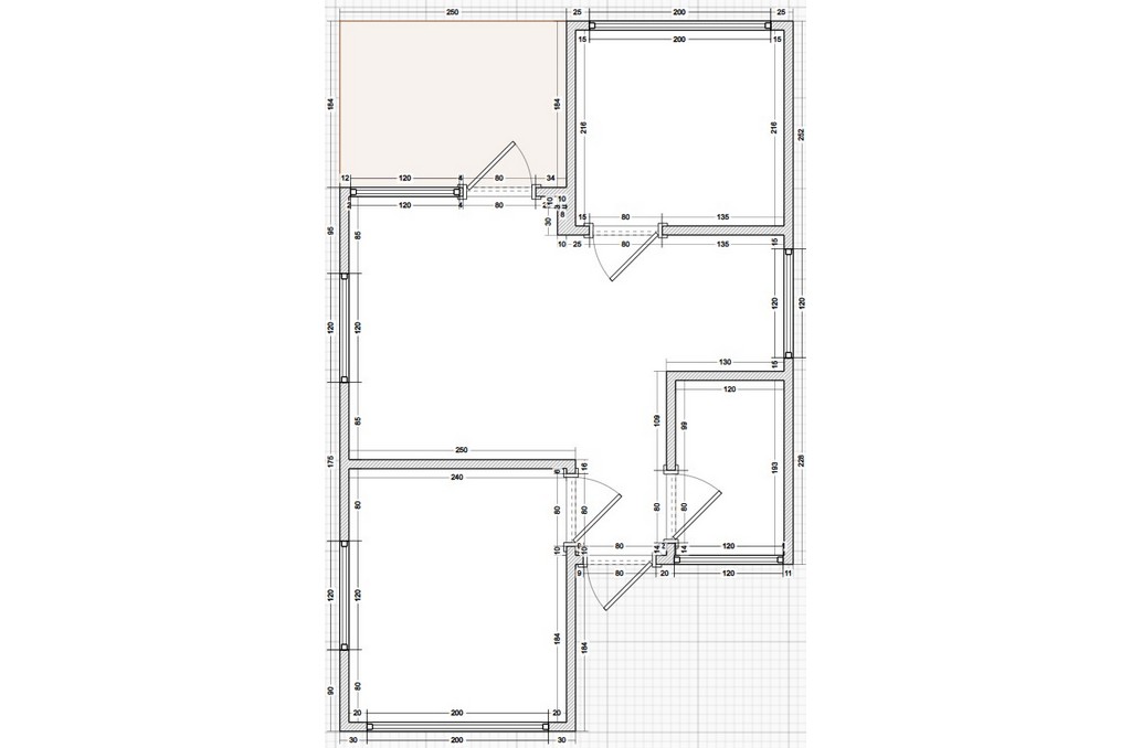
Норвегия 40М