Двойной деревянный гараж TWIN DUO 8×6 — просторное и надежное решение для хранения автомобилей
Ищете качественный гараж, который обеспечит безопасность и комфорт для ваших автомобилей? Двойной деревянный гараж TWIN DUO с размерами 8×6 метров и площадью 48 м² — это идеальный выбор для тех, кто ценит экологичность, стиль и долговечность. Выполненный из натурального дерева, он отлично впишется в любой участок и станет надежной защитой для вашего автотранспорта.
Преимущества двойного деревянного гаража TWIN DUO
- Экологичность и натуральность — конструкция полностью выполнена из высококачественного дерева, что делает его безопасным и экологичным.
- Прочность и долговечность — надежные материалы и качественная сборка обеспечивают долгий срок службы даже при суровых климатических условиях.
- Большая площадь — 48 м² позволяют разместить два автомобиля и обеспечить свободный доступ к каждому.
- Эстетичный дизайн — классический стиль и натуральная отделка подчеркнут индивидуальность вашего участка.
- Удобство эксплуатации — просторные ворота и продуманная планировка делают использование гаража максимально комфортным.
Характеристики товара
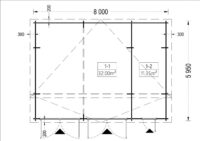
- Общая площадь: 48 м²
- Размеры: 8×6 м
- Материал: натуральное дерево
- Конструкция: прочная и устойчивая
- Время изготовления: от 10 рабочих дней
- Возможность доставки и монтажа по всей Беларуси, включая Минск
Для кого подходит этот гараж?
Двойной деревянный гараж TWIN DUO идеально подойдет владельцам частных домов, дачникам и владельцам коттеджных поселков. Он станет отличным решением для тех, кто ищет экологичный и стильный способ хранения автомобилей. Также он подойдет для семей, ценящих качество, комфорт и безопасность.
Как использовать?
Благодаря простоте сборки и монтажных работ, гараж можно быстро подготовить к эксплуатации. В комплект входит все необходимое для установки. Гараж требует минимального ухода, а натуральное дерево со временем приобретает особую привлекательность.
Закажите сейчас и получите надежное и стильное решение для хранения автомобилей!
Обратитесь в нашу компанию ДомТайга в Минске. Мы предлагаем изготовление под заказ, быструю доставку и профессиональный монтаж. Гарантируем качество, индивидуальный подход и выгодные условия. Сделайте правильный выбор — приобретайте двойной деревянный гараж TWIN DUO и обеспечьте безопасность своих автомобилей уже сегодня!






Александр –
Это просто невероятно, какой восторг испытываю от нашего нового гаража! Привезли всё точно в оговоренный срок, аккуратно разгрузили и профессионально собрали на подготовленном месте. Смотрится монументально и надёжно, даже соседи пришли полюбоваться!
Особенно радует общая площадь целых 48 квадратных метров! Теперь у нас помещается не только машина, но и полноценная мастерская с полками для инструментов. Качество древесины выше всяких похвал, чувствуется, что строили на совесть.
Огромное спасибо компании за продуманную конструкцию и безупречный сервис! Рекомендую всем, кто ценит простор и долговечность. Теперь наш автомобиль под лучшей защитой, а у меня появилось любимое место для хобби
Александр Семёнович –
Здравствуйте хочу поделиться радостью купил себе двойной деревянный гараж Твин Дуо восьми на шесть метров и очень доволен поставил на участке аж душа радуется площадь у него хорошая около пятидесяти квадратов сразу две машины помещаются и еще место для инструмента остаётся соседи аж завидуют говорят где ты такой взял а я им говорю в Кгардене нашёл качество отменное дерево обработано хорошо не боится ни дождя ни снега собирали всей семьёй в выходные получилось крепко и надёжно теперь машины под хорошей крышей стоят не мокнут не мёрзнут да и смотрится красиво как настоящий домик для автомобилей всем советую кто ищет добротный гараж на долгие годы