Скидка до 49% в Августе! Рассрочка 2 года! Кредит 15лет!

  • Вопрос-ответ
  • Наши преимущества
  • Экспорт
Заказать звонок

    Перезвоните мне

    персональных данных

    • +375 (44) 774 66 66
    • info@domokomplekt.by

    КОНТАКТЫ

    • 7704
    Заказать звонок

      Перезвоните мне

      персональных данных

      Дачные домики ТАЙГА Дачные домики ТАЙГА
      Логин / Регистрация
      0 Избранное
      0 Сравнить
      0 items 0 руб/шт
      Меню
      Дачные домики ТАЙГА Дачные домики ТАЙГА
      0 items 0 руб/шт
      Наш каталог
      • Садовые домики (до 20м2)
      • Дачные дома (более 20м2)
      • Дома на 2 этажа
      • Модульные дома
      • Комплексы (дом + баня)
      • Дома готовые “под ключ”
      • БАНИ готовые “под ключ”
      • Бани из бруса
      • Беседки деревянные
      • Хозблоки для дачи
      • Гаражи
      • Домокомплекты
      • Доставка
      • Оплата
      • Отзывы
      • 3D модели
      • Контактывыставка домов
      • Выставки домов
      228 руб/мес
      Click to enlarge
      Главная Новинки Aidom Навес Henley
      Садовый дом Alburoo II 6,336 руб/шт от 228руб/мес
      Back to products
      Навес XL 18,000 руб/шт от 228руб/мес

      Навес Henley

      12,000 руб/шт от 228руб/мес

      Товар на предзаказе

      Сравнить
      В избранное
      ID: 864d2ff67e2e Категория: Aidom
      Поделиться:
      • Описание
      • Исполнения
      • Отзывы
      • Монтаж
      • Доставка
      • Оплата
      Описание

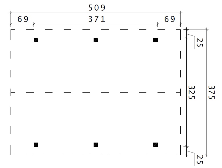
      Навес Henley размерами площадью 20м2

      Исполнения

      Базовая цена указана за “Стеновой комплект”.

      Варианты комплектации:

      1. Стеновой комплект :
      – стеновой комплект из бруса 44х145мм (стены и прогоны кровли),
      – документация – схема сборки.

      2. Домокомплект ЭКОНОМ:
      – стеновой комплект из бруса 44х145мм (2 сорт),
      – дверные и оконные блоки и наличниками,
      – брус для пола 50х50мм,
      – доска для чернового пола 25мм,
      – ветровые и карнизные планки – доска строганная 18х95мм,
      – настил кровли и потолок – плита ОСБ 9мм,
      – гвозди и саморезы,
      – документация – схема сборки.

      3. Домокомплект СТАНДАРТ:
      – стеновой комплект из бруса 44х145мм (1 сорт),
      – дверной блок и наличниками,
      – оконные блоки с остеклением, фурнитурой и наличниками,
      – обвязочный брус и лаги 50х100мм,
      – доска пола 27мм Норма или плита ОСБ 18мм,
      – ветровые и карнизные планки – доска строганная 18х95мм,
      – настил кровли и потолок – имитация бруса 16х143мм Норма,
      – рулонная кровля Технониколь,
      – гвозди и саморезы,
      – документация – схема сборки.

      4. Домокомплект ЛЮКС:
      – стеновой комплект из бруса 44х145мм (1 сорт),
      – фундамент из блоков,
      – обвязочный брус 100х150мм,
      – лаги 50х150мм,
      – доска пола 27мм Стандарт,
      – плинтус 45мм,
      – дверные и оконные блоки со стеклом и переплётами с фурнитурой и наличниками 100мм,
      – ветровые и карнизные планки – доска строганная 18х145мм,
      – настил кровли и потолок – имитация бруса 17х135мм Стандарт,
      – гибкая черепица (коричневая, зелёная, серая, красная)
      – крепёж (гвозди, саморезы, опоры бруса)
      – пропитка для обвязки и лаг,
      – пропитка защитно-декоративная или эмаль для дерева для покраски снаружи и внутри (цвет на выбор клиента),
      – документация – схема сборки.

      5. Домокомплект БАНЯ:
      – стеновой комплект из бруса 44х145мм (1 сорт),
      – фундамент из блоков,
      – обвязочный брус 100х150мм,
      – лаги 50х150мм,
      – доска пола 27мм Стандарт,
      – плинтус 45мм,
      – дверные и оконные блоки со стеклом и переплётами с фурнитурой и наличниками 100мм,
      – ветровые и карнизные планки – доска строганная 18х145мм,
      – настил кровли и потолок – имитация бруса 17х135мм Стандарт,
      – гибкая черепица (коричневая, зелёная, серая, красная)
      – крепёж (гвозди, саморезы, опоры бруса)
      – пропитка для обвязки и лаг,
      – пропитка защитно-декоративная или эмаль для дерева для покраски снаружи и внутри (цвет на выбор клиента),
      – утеплитель для пола и потолка, плёнки.
      – полок в парной из ольхи сорт Стандарт,
      – банная печь дровяная или электрическая,
      – документация – схема сборки.

      6. Дом ПОД КЛЮЧ:
      – полный домокомплект Стандарт,
      – монтаж фундамента и обвязочного пояса,
      – сборка стенокомплекта,
      – монтаж пола, крыши и кровли,
      – установки и регулировка оконных и дверных блоков,
      – пропитка, покраска, электрика, сантехника – опционально (не включено в смету)

      7. Домокомплект ИНДИВИДУАЛЬНЫЙ:
      – комплектуется, исходя из пожеланий клиента.

      Базовая цена указана за стеновой комплект их бруса 44х145мм, сорт АВ, пр-во Россия. Эта же цена приметно соответствует стоимости полного Домокомплекта ЭКОНОМ.

      Стоимость индивидуального комплекта рассчитывается исходя из пожеланий заказчика по комплектации.
      Итоговая стоимость домокомплекта может незначительно отличаться, как в меньшую, так и в большую сторону при изменении набора комплектующих.
      Стоимость доставки и сборки домокомплекта не включена в стоимость.

      Дополнительные опции:
      – подготовка площадки,
      – утепление пола и потолка,
      – сборка-монтаж «под ключ»,
      – профессиональная покраска,
      – электрика,
      – сантехника.

      Длительность самостоятельной сборки – 2-3 дня.
      Длительность профессионального монтажа – 1 день.

      Стоимость профессионального монтажа составляет 25 – 30% от стоимости домокомплекта.

      ВАЖНО:
      – домокомплект нельзя считать готовым строением или изделием, так как итоговое качество построенного дома напрямую зависит от качества строительства;
      – домокомплект является набором строительных материалов, которые будут использоваться в процессе строительства дома;
      – в процессе сборки домокомплекта Вам могут понадобится дополнительные инструменты и стройматериалы, перечень и количество которых зависит от целей клиента и которые не входят в домокомплект;
      – мы искренне рекомендуем приобретать материалы для строительства “с запасом”. Возможные расходы клиента, связанные с приобретением и транспортировкой дополнительных строительных материалов, не входят в зону ответственности Продавца.

      Отзывы

      Отзывы

      Отзывов пока нет

      Ваш отзыв будет первый Отменить ответ

      Ваш адрес email не будет опубликован. Обязательные поля помечены *

      You have to be logged in to be able to add photos to your review.

      Монтаж

      СРОКИ МОНТАЖА
      Благодаря максимально проработанной конструкции сборка и установка на Вашем участке любого стенокомплекта выполняется в течении одного дня. Баня под ключ собирается в течении 2 – 3 дней.

      СБОРКА НА ПРОИЗВОДСТВЕ

      Бани и садовые домики небольших размеров мы можем собрать “под ключ” на нашем производстве. В этом случае доставка изделия в собранном виде осуществляется манипулятором к Вам на участок.

      ПРОФЕССИОНАЛЬНЫЙ МОНТАЖ НА ВАШЕМ УЧАСТКЕ

      В случае необходимости сборки прямо на участке мы предоставляем профессиональные бригады монтажников, которые выполнят работу быстро и качественно. Стоимость крупноузловой сборки минибань составляет 10% от базовой стоимости. Стоимость монтажа садовых домиков, хозблоков и бань из бруса составляет 25% от стоимости материалов домокомплекта. Отдельно оплачиваются накладные расходы бригады: топливо, ночлег (если необходимо).

      САМОСТОЯТЕЛЬНЫЙ МОНТАЖ

      Также вполне возможен самостоятельный монтаж:

      Со сборкой нашего домика легко справится 1 человек (но лучше 2) с минимальными навыками и простым ручным инструментом: ножовка, шуруповёрт, молоток.

      Информация, представленная в схемах сборки, абсолютно достаточна и понятна. Кроме того, мы всегда поможем Вам советом при возникновении любой проблемы. Наша служба технической поддержки доступна 7 дней в неделю без обедов и выходных.

       

      ВАРИАНТЫ УТЕПЛЕНИЯ

      Доставка

      Как работает доставка

      • Доставляем домокомплекты в любую точку Беларуси.
      • Доставку производим в день покупки товара.
      • Оптимально подбираем автомобиль под Ваш заказ для экономии.
      • Самостоятельно загружаем и упаковываем товар для доставки.

      Стоимость доставки

      • Платная доставка по Беларуси стоимостью от 75 руб в зависимости от расстояния.
      • Для клиентов, покупающим крупногабаритный товар, доставку осуществляют грузоперевозчики. Стоимость доставки рассчитывается исходя из расстояния до объекта и веса товара. Средний тариф составляет 1,20 руб./км. Любые изменения в стоимости доставки предварительно согласовываются с покупателем.
      • Некрупногабаритный товар (объёмом до 1 м3) доставляем курьерскими службами - очень выгодный и экономный способ доставки по Беларуси.
      • Также всегда есть возможность самовывоза оплаченных товаров с любого склада на усмотрение покупателя.

      Регион доставки

      • Доставляем, монтируем в любой точке Беларуси. Доставим за один день в следующие города: Минск, Гомель, Могилёв, Витебск, Гродно, Брест, Бобруйск, Барановичи, Борисов, Пинск, Орша, Мозырь, Солигорск, Новополоцк, Лида, Молодечно, Полоцк, Жлобин, Светлогорск, Речица, Жодино, Слуцк, Кобрин, Слоним, Волковыск, Калинковичи, Сморгонь, Рогачёв, Горки, Осиповичи, Берёза, Новогрудок, Дзержинск, Вилейка, Кричев, Лунинец, Ивацевичи, Марьина Горка, Поставы, Пружаны, Глубокое, Добруш, Лепель, Быхов, Иваново, Климовичи, Шклов, Столбцы, Костюковичи, Житковичи, Мосты, Ошмяны, Смолевичи, Щучин, Дрогичин, Несвиж, Заславль, Ганцевичи, Хойники, Фаниполь, Жабинка, Новолукомль, Микашевичи, Белоозёрск, Столин, Городок, Березино, Логойск, Малорита, Барань, Любань, Клецк, Ляховичи.
      Оплата
      способы и порядок оплаты за товар

      Правила оплаты

      Оплачивайте быстро и выгодно!

      Мы позаботились о том, чтобы оплата покупки была доступна в той форме, которую предпочитаете лично вы.
      Независимо от выбранной формы оплаты, расчет производится только в белорусских рублях.

      Кредит на срок до 7 лет:

      Кредит предоставляется физ. лицам в бел. рублях на приобретение домокомплектов и бань отечественного производства.

      • Без справок и поручителей
      • Без посещения банка
      • Нужен только паспорт
      • Срок кредита – до 84 месяцев
      • Процентная ставка:         9% (СР- 0,50 п.п.) годовых на 1 год         13,50% (СР* + 4,00 п.п.) годовых на 2-7 лет
      • Максимальная сумма кредита до 75 000,00 BYN
      • Форма предоставления кредита: в безналичном порядке путем перечисления Банком денежных средств на наш расчётный счёт.

      Кредит на срок до 15 лет:

      Кредит предоставляется физ. лицам в бел. рублях на приобретение домокомплектов и бань отечественного производства.

      • На домокомплекты отечественного производства
      • Без посещения банка
      • Нужен только паспорт
      • Срок кредита – до 180 месяцев
      • Процентная ставка:        16% годовых на 15 лет
      • Максимальная сумма кредита до 75 000,00 BYN
      • Форма предоставления кредита: в безналичном порядке путем перечисления Банком денежных средств на наш расчётный счёт.

      Оплата картами рассрочки (без переплат):

      «Черепаха»от банка ВТБ — 8 месяцев рассрочки.

      «Халва» от МТБанка — 2 месяца рассрочки;

      «Карта покупок» от Белгазпромбанка — 2 месяца рассрочки;

      «СМАРТ карта»от банка Дабрабыт — 2 месяца рассрочки.

      «КартаFUN» от БПС-Сбербанка — 3 месяцев рассрочки.

      «Магнит» Беларусбанка — 2 месяцев рассрочки.

      Оплата картами рассрочки возможна:
      — онлайн при оформлении заказа на сайте;
      — в наших собственных складах-магазинах.
      Если при оформлении заказа выбрать способ оплаты «картой рассрочки», то товар будет оплачиваться исключительно на условиях оплаты в рассрочку (при этом наличие ваших собственных денежных средств на этой карте никак не учитывается). При оплате картами рассрочки действуют суперцены и акции с подарком; не действуют скидки по промокоду и акционные цены (товары со значком «%» можно приобрести по зачеркнутой цене); баллы нашей бонусной программы не начисляются.
      Чтобы воспользоваться скидкой по промокоду, акционными ценами, необходимо онлайн оплатить заказ собственными денежными средствами, имеющимися у вас на карте рассрочки. Для этого выбирайте при оформлении заказа: Оплатить сейчас онлайн — картой Visa, MasterCard или Белкарт (или через систему «Расчет» ЕРИП).

      Оплата частями

       

      Практически любой товар в нашем онлайн-гипермаркете можно оплатить частями.
      Для этого достаточно указать в корзине или сообщить оператору выбранный способ оплаты. Обратившись в call-центр, вы можете проконсультироваться насчет наиболее удобного для вас варианта, а при клике по «Оплате частями» на странице товара вы сможете выбрать оптимальные для вас условия: размер первоначального взноса и период оплаты.
      Документы для оплаты по частям вы можете оформить онлайн или подписать и забрать при получении заказа. Если вам недоступно онлайн оформление, вам необходимо будет присутствовать при получении товара с паспортом/видом на жительство; документы на подпись из банка будут доставлены вместе с заказом к месту получения товара.
      При выборе способа оплаты «Оплата частями», отменяются все примененные к товарам промокоды. Бонусные баллы начисляются для товаров в соответствии с правилами бонусной программы.
      Более точную информацию вы можете узнать у менеджера.

      Наличный расчет (на складе и курьеру)

      — Вы можете оплатить покупку при доставке, рассчитываясь с курьером наличными деньгами.
      — Если вы осуществляете самовывоз, оплату необходимо будет совершить в кассе пункта выдачи товара.

      Банковские карты (онлайн и терминал)

      Оплата банковской картой через терминал
      — Оплата курьеру при доставке.
      — Также возможна оплата через терминалы во всех пунктах самовывоза.

      Оплата банковской картой онлайн
      К оплате принимаются карты Visa, Visa Electron, MasterCard всех классов и банков, Maestro, Мир и Белкарт.
      Мы рекомендуем вам заранее обратиться в свой банк, чтобы удостовериться в том, что ваша карта может быть использована в системе Webpay.

      При оформлении заказа на сайте выберите способ «Оплатить сейчас онлайн», далее выберите подходящий вариант:
      — картой рассрочки;
      — картой Visa, MasterCard, Белкарт, Мир;
      — через систему «Расчет» (ЕРИП)

      Введите данные для доставки и комментарий, нажмите кнопку «Подтвердить заказ».
      Вы попадете на страницу подтверждения заказа, где будет указан его номер и сумма платежа. На этой странице нажмите кнопку «Оплатить счет».

      После вы будете перенаправлены на сервер системы, обеспечивающей безопасность платежей, где вам потребуется ввести реквизиты своей карты и персональные данные. Эти данные будут введены не на странице нашего онлайн-гипермаркета, а на авторизационной странице платежной системы. Операция оплаты банковской картой онлайн полностью конфиденциальна и безопасна.

      Для всех типов карт используется перенаправление в систему Webpay.

      “Безопасный сервер WEBPAY устанавливает шифрованное соединение по защищенному протоколу TLS и конфиденциально принимает от клиента данные его платёжной карты (номер карты, имя держателя, дату окончания действия, и контрольный номер банковской карточке CVC/CVC2).

      После совершения оплаты с использованием банковской карты необходимо сохранять полученные карт-чеки (подтверждения об оплате) для сверки с выпиской из карт-счёта (с целью подтверждения совершённых операций в случае возникновения спорных ситуаций).

      В случае, если Вы не получили заказ (не оказана услуга), Вам необходимо обратиться (в службу технической поддержки) по e-mail info@derevo.by  или по телефону +375293180376. Менеджеры Вас проконсультируют.

      При оплате банковской платежной картой возврат денежных средств осуществляется на карточку, с которой была произведена оплата”

      Для совершения единовременной оплаты корзины товаров с различными предлагаемыми сроками рассрочки или специальными условиями их приобретения необходимо ввести реквизиты своей карты и персональные данные на защищенной странице системы webpay. Данные карточки будут сохранены при проведении операции оплаты части корзины для оптимизации процесса платежа и проведения операций на оставшуюся часть корзины товаров. Обращаем Ваше внимание, что если в корзине присутствуют несколько товаров с более чем одним предложенным сроком рассрочки, то данные карточки не потребуется вводить несколько раз. Оформляя заказ и совершая последующий платеж, Вы соглашаетесь на списание денежных средств без ввода реквизитов карточки для оплаты товаров в одной корзине. После успешного проведения платежей данные Вашей карточки будут автоматически удалены из системы и не будут использованы для оплаты последующих заказов на сайте derevo.by.

      Обращаем ваше внимание, что после проведения платежа на ваш электронный адрес придет подтверждение оплаты. Просим вас сохранять данные оплаты.
      В случае замены и возврата товара, денежные средства возвращаются на карту в полном размере и без каких-либо комиссий. Срок возврата денежных средств на карточку может достигать 30 дней и зависит от банка эмитента, выпустившего карточку. После проведения оплаты наш менеджер свяжется с вами указанным вами способом для уточнения деталей по доставке.

      Внимание! При получении товара, оплаченного онлайн, необходимо предоставить документ, удостоверяющий личность.

      долгосрочный кредит под хороший %

      Оплата частями до 7 лет

      Кредит на срок до 7 лет:

      Кредит предоставляется физ. лицам в бел. рублях на приобретение домокомплектов и бань отечественного производства.

      • Без справок и поручителей
      • Без посещения банка
      • Нужен только паспорт
      • Срок кредита – до 84 месяцев
      • Процентная ставка:         9% (СР- 0,50 п.п.) годовых на 1 год         13,50% (СР* + 4,00 п.п.) годовых на 2-7 лет
      • Максимальная сумма кредита до 75 000,00 BYN
      • Форма предоставления кредита: в безналичном порядке путем перечисления Банком денежных средств на наш расчётный счёт.

      Кредит на приобретение домокомплектов для физических лиц

      Кредит предоставляется физ. лицам в бел. рублях на приобретение домокомплектов отечественного производства.

      • Процентная ставка – 12,5% годовых (СР*+ 3 п.п.)
      • Срок кредита – до 60 месяцев
      • Без справок о доходах
      • Максимальная сумма кредита: не более 100% от стоимости приобретаемого товара в соответствии с условиями договора купли-продажи
      • Форма предоставления кредита: в безналичном порядке путем перечисления Банком денежных средств в оплату товаров по договору купли-продажи
      платите частями в течение всего сезона

      Рассрочка

      Рассрочка до 8 месяцев

      • Удобная рассрочка от ВТБ банка.
      • Оплата за 1 день.
      • Отгрузка в день обращения.

      Рассрочка 0% на срок до 8 месяцев

      • Оплата картами рассрочки от 6 банков.

      Рекомендованные товары

      117 руб/мес
      Сравнить
      Быстрый порсмотр
      В избранное
      В корзину

      Садовый дом Nora C 8

      6,144 руб/шт от 117руб/мес
      161 руб/мес
      Сравнить
      Быстрый порсмотр
      В избранное
      В корзину

      Садовый дом Jacob F

      8,448 руб/шт от 161руб/мес
      161 руб/мес
      Сравнить
      Быстрый порсмотр
      В избранное
      В корзину

      Садовый дом Jacob A

      8,448 руб/шт от 161руб/мес
      161 руб/мес
      Сравнить
      Быстрый порсмотр
      В избранное
      В корзину

      Садовый дом Jacob E

      8,448 руб/шт от 161руб/мес
      161 руб/мес
      Сравнить
      Быстрый порсмотр
      В избранное
      В корзину

      Садовый дом Eva C

      8,448 руб/шт от 161руб/мес
      161 руб/мес
      Сравнить
      Быстрый порсмотр
      В избранное
      В корзину

      Садовый дом Eva X

      8,448 руб/шт от 161руб/мес
      299 руб/мес
      Сравнить
      Быстрый порсмотр
      В избранное
      В корзину

      Дачный дом Paula 12

      15,762 руб/шт от 299руб/мес
      474 руб/мес
      Сравнить
      Быстрый порсмотр
      В избранное
      В корзину

      Дачный дом Heinz

      24,966 руб/шт от 474руб/мес

        фотогалерея

        ДОМИКИ

        смотреть
        фотогалерея

        Беседки CUBE

        смотреть
        фотогалерея

        БАНИ-БОЧКИ

        смотреть
        дачные домики

        ВИДЕООБЗОРЫ

        смотреть

        Доставка за 4 часа

        В любую точку Беларуси - недорого!

        Рассрочка до 36 мес.

        Принимаем 6 видов карт рассрочки!

        Техподдержка

        Решим любую Вашу проблему по сборке

        Гарантия качества

        Надёжный и красивый, толстый и широкий мини-брус

        100 дней на возврат

        Остались материалы? Мы примет обратно!

        • О нас
          • О компании
          • Стратегия
          • Отзывы
          • Контакты
          • Сертификаты
          • Конкурентные преимущества
        • Информация
          • Дилерам
          • Поставщикам
          • Вопрос-ответ
          • Наши преимущества
          • Экспорт
          • Возможные проблемы при монтаже и способы их решения
        • Меню
          • Каталог
          • Доставка и оплата
          • Акции
          • Контакты
          • Договор оферты
          • Политика конфиденциальности
        • Каталог
          • Садовые домики
          • Бани-бочки
          • Баньки
          • Бытовки и хозблоки
          • Беседки
        Лого ДОМ Тайга - горизонтально 270
        Подписка на новости

          Подписка на новости

          персональных данных

          Написать руководству

            Написать руководству

            персональных данных

            Перезвоните мне

              Перезвоните мне

              персональных данных

              «Лесоторговая компания» ЧТУП, УНП 191564524, ОКПО 380011665000 Юр. Адрес: 220141, г. Минск, ул. Франциска Скорины, 52, корп. I-1,2; 1 этаж, пом. 17. ЗАО «Альфа-Банк»,  220030, г.Минск,  ул.Мясникова, 70, БИК  ALFABY2X, р/с № BY42ALFA30122C66470010270000

              • Меню
              • Категории
              • Садовые домики (до 20м2)
              • Дачные дома (более 20м2)
              • Дома на 2 этажа
              • Дома готовые “под ключ”
              • Модульные дома
              • Комплексы (дом + баня)
              • Бани готовые “под ключ”
                • Бани Барни
                • Бани Тайга
                • Бани Панорама
                • Бани Модульные
                • Бани Куб
                • Бани Викинг
                • Бани Тундра
                • Бани Бочки
                • Бани Квадро Бочки
                • Бани Овало Бочки
                • Бани из профилированного бруса
              • Дома-Бани из бруса
              • Беседки деревянные
              • Хозблоки для дачи
              • Гаражи
              • Детские домики
              • Новинки
                • Profi 365 + 3D NEW
                • HuspolНОВИНКА
                • LozitoНОВИНКА
                • Aidom
                • Ave
                • Alt
                • Bhouse
                • Carribbean
                • CabinM
                • Ghouse
                • Intu
                • Finn
                • Plm
                • Tsauna
                • Ten
                • Sts
                • Sgarden
                • Qgarden
                • Grp
                • jGarden
                • SkaHol
              • Домокомплекты
              • Доставка
              • Оплата
              • Отзывы
              • 3D модели
              • Контактывыставка домов
              • Избранное
              • Сравнить
              • Логин / Регистрация
              Корзина
              Закрыть
              Вход
              Закрыть

              Забыли пароль?

              Нет аккаунта?

              Создать аккаунт

              Почему мы?

              Скидка 20% - в АВГУСТЕ! - жми и получи %

              Собственное производство.

              Срок изготовления 10 дней.

              Более 50 бань и домов в наличии.

              Три выставки домов, бань, беседок в Минске.

              Рассрочка 2 года, кредит до 15 лет.

              подробнее узнать...

              Facebook X Instagram YouTube Pinterest GitHub WhatsApp WhatsApp ВК TikTok Telegram

              Навес Henley

              12,000 руб/шт от 228руб/мес

              Товар на предзаказе

              Сравнить
              В избранное
              Купить в рассрочку!

                Перезвоните мне

                персональных данных

                Оплата картами рассрочки:

                Рассрочка до 8 месяцев (без переплат).

                Онлайн кредит до 84 месяцев:

                Срок кредитования: до 84 месяцев

                Сумма кредита: до 75 000,00 BYN

                Процентная ставка:

                         9% (СР- 0,50 п.п.) годовых на 1 год

                         13,50% (СР* + 4,00 п.п.) годовых на 2-7 лет

                Без посещения банка.

                Без справок и поручителей.

                Оформление за 15 минут.

                Для разговора с онлайн-консультантом
                разрешите вашему браузеру исопльзовать микрофон